Contactar por WhatsApp Asistente virtual Tana
MONTE CRISTO
Noticias de la ciudad
Jueves 29 de diciembre del 2016

La Construcción del Jardin 25 de Mayo es una Realidad

  • La Construcción del Jardin 25 de Mayo es una Realidad
  • La Construcción del Jardin 25 de Mayo es una Realidad
  • La Construcción del Jardin 25 de Mayo es una Realidad
  • La Construcción del Jardin 25 de Mayo es una Realidad

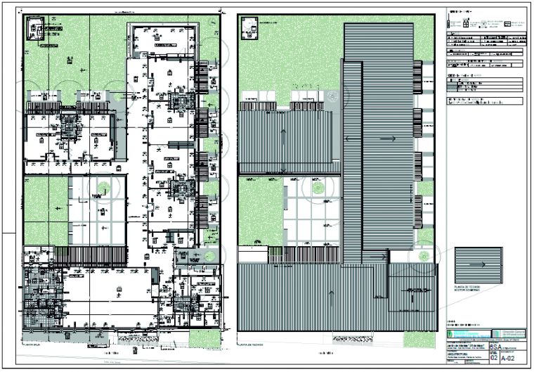
Después de la donación de un terreno por parte del municipio y la licitación de obra de parte del gobierno nacional, en enero de 2017 se comienza la construcción del Jardín de Infantes 25 de Mayo en nuestra ciudad.

Esta nueva sede contará con 4800 m2 el terreno en total y el jardín en sí 1000 m2 construidos, que incluyen 6 aulas con sus núcleos sanitarios, SUM, área administrativa, área recreativa- deportiva y sector de comedor.

Se ubica en el barrio Parque Norte, entre las calles Claudio Digon, Julio Shed y Florentino Ameghino, y se proyecta finalizar la obra en 7 meses.

Con esta importante obra se busca beneficiar a muchos niños de nuestra ciudad, que tanto necesitaban este espacio.